Attico
Quartucciu
265.000 euro

Nei pressi di una zona centrale, ricca di attività commerciali e ottimamente servita dalle principali linee di trasporto pubblico, proponiamo in corso di costruzione un appartamento sito al primo e ultimo piano del maggior fabbricato servito da ascensore.
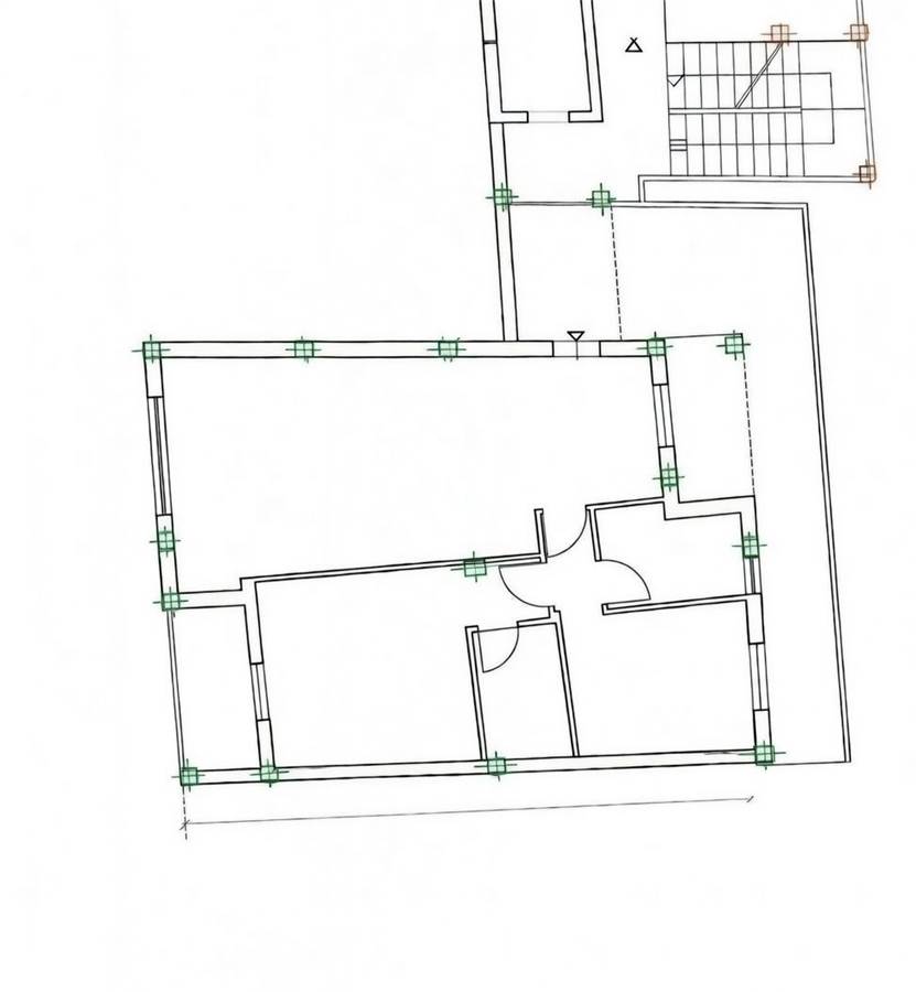
La soluzione, di tipologia trivano, con pertinenze esterne di circa 30 mq, gode di doppia esposizione, risultando particolarmente luminoso ed è caratterizzato da un suggestivo tetto a falde in legno sbiancato. La distribuzione interna prevede:
ingresso su ampio soggiorno con angolo cottura
due camere da letto
due bagni
ampia veranda e balcone
Completa la proprietà un posto auto nel cortile condominiale.
L’appartamento occupa l’intero piano, garantendo elevati livelli di privacy ed esclusività.
Il capitolato prevede finiture moderne (Iter di Ruggeri) e impianti di ultima generazione, tra cui:
infissi in PVC con doppio vetro e anta a ribalta
avvolgibili motorizzati
videocitofono
split inverter classe A+++
impianto fotovoltaico privato da 3 kW
Soluzione ideale per chi cerca comfort, efficienza energetica e una posizione strategica.

Classe Energetica A4 e garanzia decennale.

Sardinia Real Estate
Tel. 3932389129
Via Mandas 2
09044 - Quartucciu (CA)

Codice
V001632
Prezzo
265.000 euro
Mq
105
Mq calpestabili
75
Classe
A4 (22)
Locali
3
Camere
2
Bagni
2
Posti auto
1
Mq Terrazzo
30
Stato Immobile
In Costruzione
Grado
Signorile
Posizione
Centro
Panorama
Vista Aperta
Piano
Primo
Orientamento
Nord Ovest Sud Est
Totale Piani
Uno
Lati Liberi
2
Giardino
Comune
Tipo Soggiorno
Soggiorno
Tipo Cucina
Angolo Cottura
Riscaldamento
Autonomo
Tipo Riscaldam.
Caldaia
Tipo Impianto
Aria
Fonte Energetica
Elettrico
Acqua Calda
Caldaia
Raffrescamento
Split
Infissi
PVC Doppio Vetro
Serramenti
Nuovo
Persiana
Tapparella PVC
Pavim. Giorno
Gres Porcellanato
Pavim. Notte
Gres Porcellanato
Pavim. Cucina
Gres Porcellanato
Pavim. Bagno
Gres Porcellanato
Accesso Disabili
Nessuna Barriera
Accesso interno disabili
Pieno accesso
Isolamento
Presente
Isolamento termico
Isolamento tetto/sottotetto
Isolamento acustico
Isolamento completo
Accessori:
Aria Condizionata, Ascensore, Cancello Elettrico, Doppi Vetri, Impianto Fotovoltaico, Porta Blindata, Tapparelle Elettriche, Video Citofono, Zanzariere
via mandas 2, Quartucciu (CA)
Stampa scheda immobile Richiedi informazioni
Cookie preference