Suelo edificable
Quartucciu
145.000 euro


Codice
V001614
Prezzo
145.000 euro
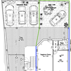
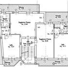
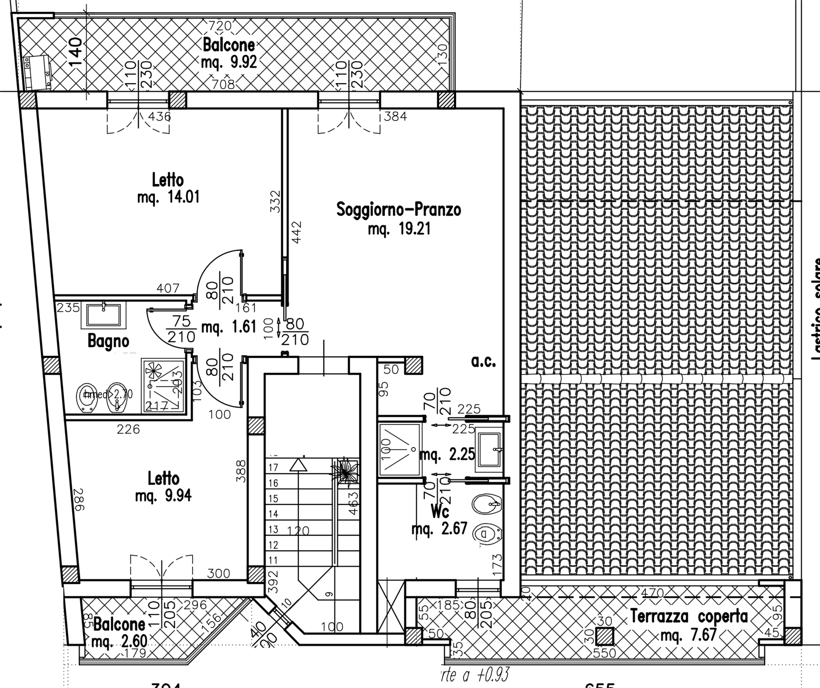
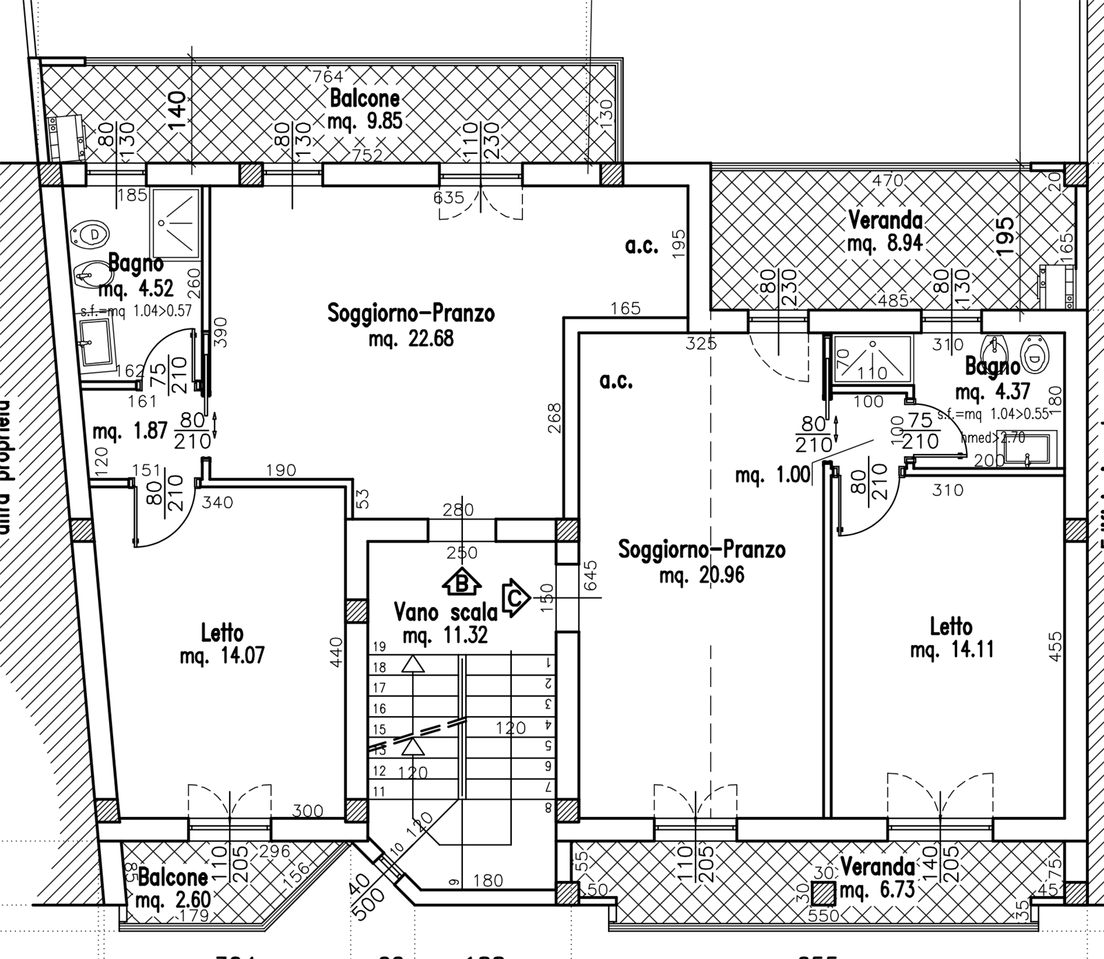
Mq
250
Classe
F (127)
Locali
10
Estado del edificio
Ara ser restaurado
Grado
Elegante
Posición
Centro
Orientación
Oeste Este
Lados Libres
2
Jardin
Privado
Amueblado (sí – no)
Vacio
via Mandas 2, Quartucciu (CA)
Stampa scheda immobile Richiedi informazioni
Cookie preference